買房前焦灼,沒買到焦灼,但買到了卻更加焦灼。
昨天(10月28日)上午,在寶安沙井海岸城與山姆會員商店正式簽約之際,萬豐海岸城臻園迎來了業主們的二度維權。
“看圖買房”、“私改戶型”、“貨不對板”......這距離萬豐海岸城臻園售罄還不到一個月。

作爲深圳“SSR級別的網紅盤”,再加上是海岸集團開發代表作並且有前一期開盤經驗,現在連戶型圖都能出錯,正應驗了古話:“人有失足,馬有失蹄”。
不過,萬豐海岸城臻園是深圳第一個敢犯錯這麼“低級錯誤”的項目。
沒有售樓處,沒有沙盤,沒有樣板間,萬豐海岸城臻園選擇了讓業主們“抽盲盒”式選房。
據相關業主透露,不僅選房前無樣板可看,連宣傳的樣板照片都沒有,只有戶型圖和裝修標準公告。

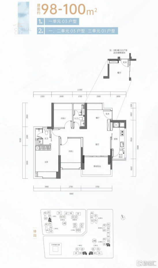
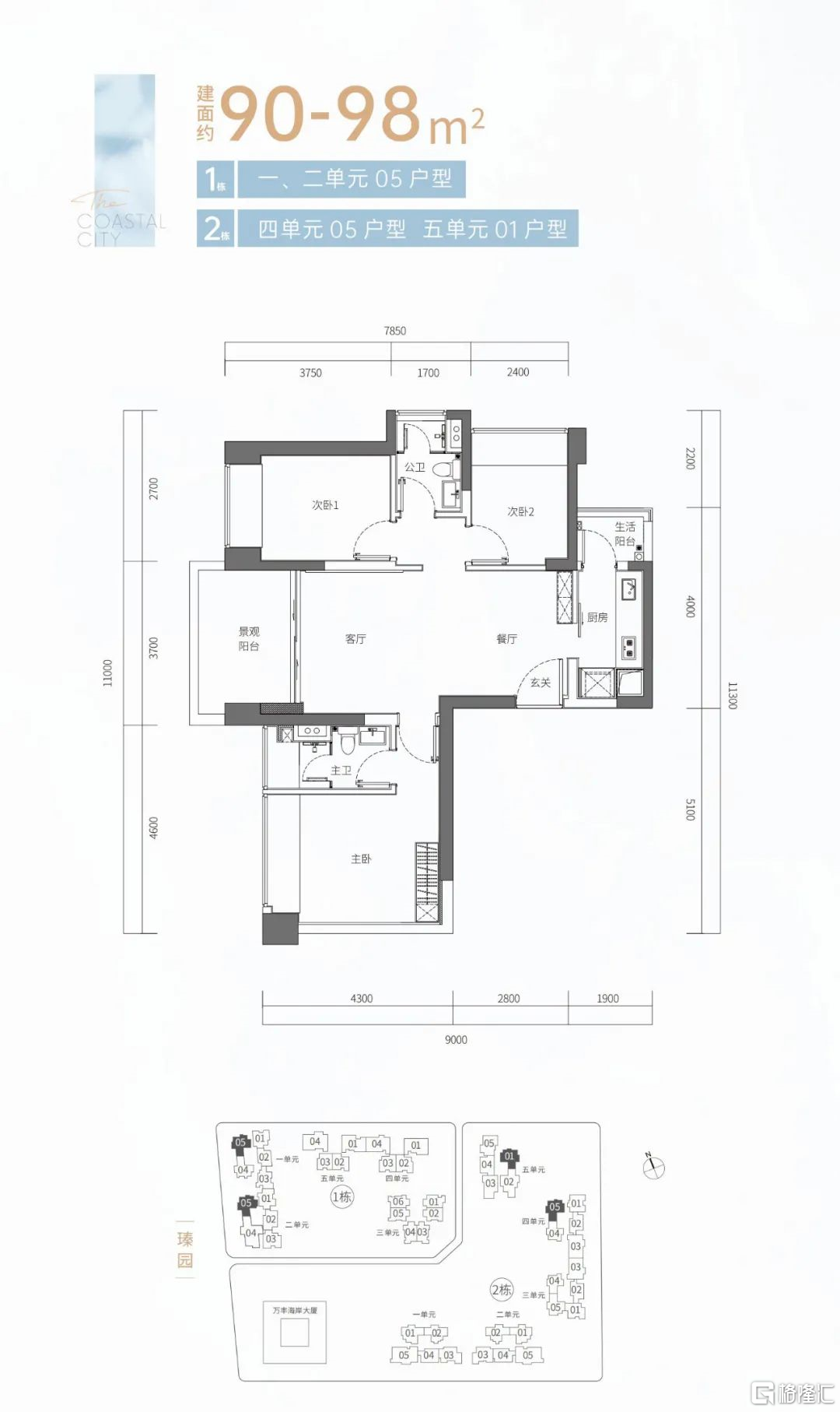
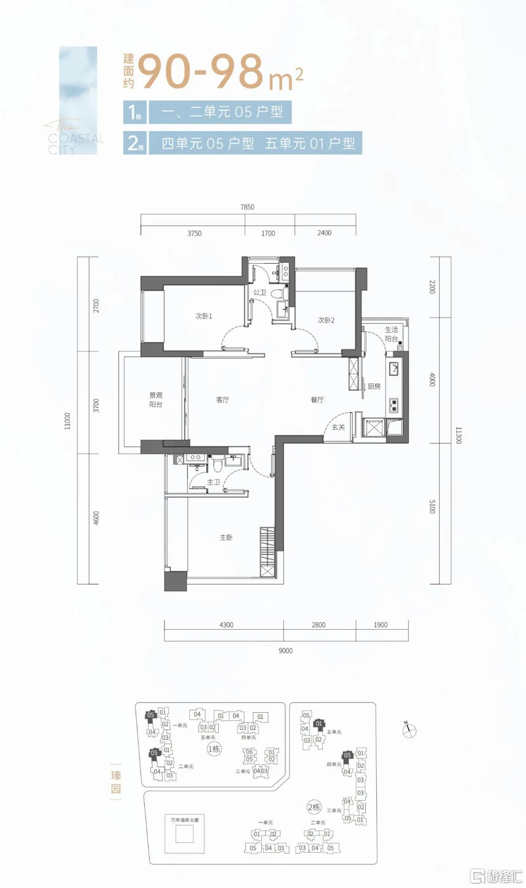
作爲深圳購房羣體熱選的項目,萬豐海岸城臻園共推出1025套住宅,建面約82-136㎡3-4房,均價約5.75/㎡,總價約429-877萬/套,精裝交付,開盤當天,以4小時“日光”的速度售罄,單日攔金超57億。
而開盤之初,據萬豐海岸城官方發佈的入圍公示名冊,入圍的最低積分是59.1分,凍資人數爲2760批,中籤率爲37%。

換算成社保年限,入圍最低社保只需要41個月,相比上一期需要近300個月的社保,才能入圍凍資選房,積分要“親民”不少。
原以爲房源順銷,業主們就可以順理成章網籤備案,結果萬豐海岸城臻園,反手扔出了個“王炸”,業主們直接面臨簽約日即“維權”日的尷尬。
因爲在準備簽約之際,業主們發現預售合同以及補充協議中多處透露出讓人匪夷所思的條約:
1、公攤面積差異不退不補
2、裝修工程保修年限爲“0”
3、公共區域無償且不可撤銷地給出賣人支配使用
4、由出賣人統一管理使用共有部分
5、部分停車位、車庫的所有權歸出賣人所有;
6、出賣人在本小區共有部位公共場地無償設置廣告
7、項目所在小區及所在樓宇的建築物冠名權、更名權歸出賣人享有

能夠出現這樣的協議條款,放眼深圳的新盤項目,幾乎是空前絕後的。
於是,有網友質疑,這樣的做法有“店大欺客”之嫌。

如果說“裝修不保修”是小問題,那麼預售展示的戶型圖和備案的戶型不一致,則是不能讓步的大問題。
就在業主們發現“補充協議”存在不合理條款後,網籤預售合同卻又發現戶型“貨不對板”。
萬豐海岸城有18種戶型,關於“戶型貨不對板”的問題@格隆匯樓市,採訪了直接相關的業主。
據業主透露,戶型被搞錯的是2棟一、二單元01戶型以及 02戶型。
在萬豐海岸城臻園發佈銷售方案之初,在萬豐海岸城公衆號和寶安公證處選房上,01戶型爲93㎡,而02戶型爲91㎡。
在業主反饋出現錯誤後,兩種戶型才被更改過來。

(業主提供資料,使用需聯繫原業主)
其次,是2棟三單元01戶型、2棟四單元05戶型、2棟五單元01戶型都有出錯。



萬豐海岸城 公衆號最初公示的戶型
據受訪業主透露,2棟三單元01戶型,在萬豐海岸城公衆號和寶安公證處上的選房戶型圖上,存在次臥朝向改變、衛生間飄窗沒了、廚房尺寸縮小15%以及房門變成對衛生間門的問題。
除此以外,2棟4單元05戶型入戶門改變了,2棟五單元01戶型存在問題。

(業主提供的戶型圖,使用請聯繫相關業主)
而這些戶型中,同一樓層,總價相差最大可以去到12萬。
目前,關於“貨不對版”的問題,海岸城官方暫未提供解決方案。
據業主透露:“萬豐海岸城臻園雖然一直表示解決,但是一直沒有進展。上週六承諾本週二給解決方案,一直沒有,一直拖。
對於畫錯的戶型圖,先是設計師承認公衆號上的選房戶型圖點錯了,後來銷售一直統一口徑是細微調整,不需要解決方案。而01戶型以及02戶型搞反的,則需要等通知。”
而面對解決措施異常難以推進的情況,受訪業主表示,已經向深圳市市場監管局寶安監管局反饋,但是回覆結果是需要向房地產主管部門反映。

(業主提供的截圖,使用請聯繫相關業主)
至於解決措施,受訪業主表示,希望能改回自己的目標戶型,要是不能改的,希望萬豐海岸城臻園能夠合理補償,但是開發商現在遲遲不給解決方案,定金交了,認購書籤了,首付款交了,合同一直不敢籤,等得慌。
所以截止目前爲止,業主們只能繼續等待方案結果。
不過,關於補充協議不合理條款問題,在業主的爭取下,萬豐海岸城臻園給出瞭解決方案。
比如刪除“買受人不得改變本房地產之所在樓宇的外觀整體效果,遵守出賣人或者物業服務企業對共有部分的統一管理、使用”、“出賣人有權在本小區共有部位、公共場地無償設置廣告,但該等廣告設置不得影響買受人的正常生活”等條款。

(業主提供的圖片,使用請聯繫相關業主)

(業主提供的截圖,使用請聯繫相關業主)
鑑於在買房的路上,維權情況時有發生,針對萬豐海岸城,預售房屋戶型圖與公證選房戶型圖不一致的問題,@格隆匯樓市諮詢了@北京盈科律師事務所的曾律師。
面對萬豐海岸城臻園業主的情況,北京盈科律師事務所曾律師表示:
爭取買房權益的方式,可積極收集開發商提供的資料與信息。比如公衆號宣傳文章,銷售發佈的信息、戶型圖等,如果不符合合同約定,交付標的物並非合同約定的標的物,構成根本違約了,雙方可以協商一致解除合同。
